In vendita a Modena (Zona Viali)
Italiano
240.000 €
117 m2
2 Camere
1 Bagni
2° piano - con ascensore
In fase di valutazione

In vendita a Modena (Zona Viali)

In vendita • Modena (Zona Viali)
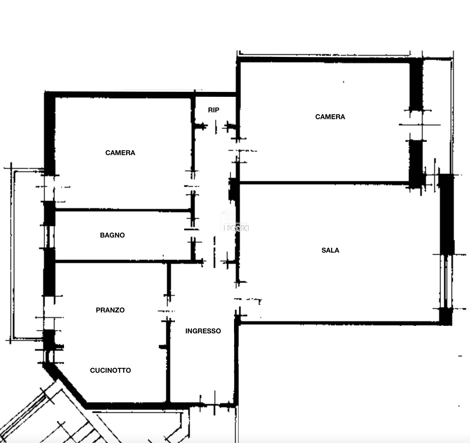
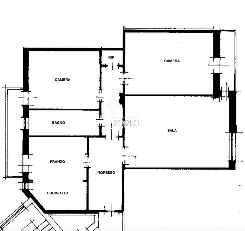
VXNP2904 In zona Viali appartamento di 117 mq comm.li posto al secondo piano (con ascensore) in condominio con facciate esterne appena rifatte composto da: ingresso, sala con balcone, cucina abitabile, 2 camere matrimoniali, un bagno. cantina e soffitta.

Riscaldamento centralizzato

FINITURE INTERNE dell'epoca di costruzione (anni 60/70) tranne il bagno ma rifatto diversi anni fa.

FINITURE ESTERNE Rifatto completamente con intervento 110, cappotto e caldaia nuova.

PREZZO TRATTABILE
Caratteristiche principali Vedi tutte
Codice
VXNP2904
Città
Modena (Zona Viali)
Categoria
4 o più locali
Prezzo
240.000 €
Locali
4
Camere
2
Bagni
1
Mq
117
Balconi
1
Mq Balcone
8,75
Piano
Secondo
Classe energetica
In fase di valutazione
Stato Immobile
Come da Origini
Grado
Medio
Lati Liberi
2
Riscaldamento
Centralizzato
Tipo Impianto
Radiatori

Accessori: Ascensore

Chiudi tutte
Planimetrie
Photo 1
Agenzia di riferimento
Studio I Portici srl
Studio I Portici srl
Viale Corassori, 72
41124 Modena MO
Rif. Annuncio VXNP2904
Vantaggi GruppoMore
Puoi acquistare questo immobile anche rivolgendoti ad un altro Agente Immobiliare del Gruppo MORE
Guarda l’elenco
Richiedi informazioni
Invia
Condividi su
Condividi su Facebook Condividi su Twitter Condividi su Linkedin Condividi su Whatsapp
Cookie preference