Appartamento di recente costruzione in Classe A1
Italiano
480.000 €
193 m2
3 Camere
2 Bagni
2 Box
2° piano - con ascensore
A1
79,76

Appartamento di recente costruzione in Classe A1

In vendita • Modena (Università/Policlinico)
VX2695 - Modena Ad.ze Policlinico
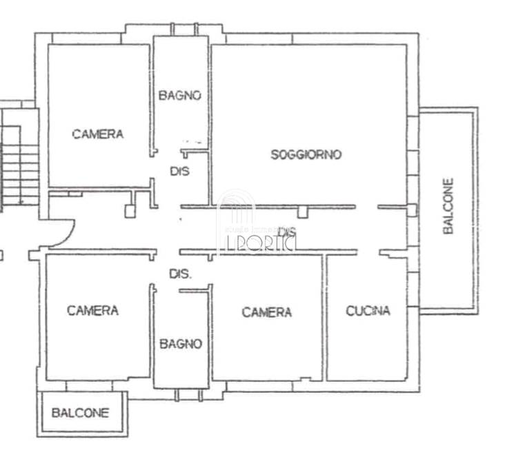
Appartamento di mq 193 mq comm.li di recente costruzione in classe A1, posto al secondo piano con ascensore, composto da: ingresso, salone, cucina abitabile con balcone, 3 camere matrimoniali, 2 bagni, ripostiglio, DUE GARAGE comunicanti per un totale di 42 mq.

Riscaldamento a pavimento, classe energetica A1, spese condominiali sui 1700 + consumi variabili.

Le finiture interne sono del periodo della costruzione e sono ancora valide.
Porta blindata, tapparelle elettriche, zanzariere, aria condizionata, cappotto interno.

Le finiture esterne sono buone con le facciate in pietra faccia vista.
Ampio parcheggio sul retro.

Consegna da concordare tra 8/12 mesi
Caratteristiche principali Vedi tutte
Codice
VX2695
Città
Modena (Università/Policlinico)
Categoria
Appartamento
Prezzo
480.000 €
Locali
5
Camere
3
Bagni
2
Mq
193
Box
2
Mq Box
42
Balconi
2
Mq Balcone
19,07
Piano
Secondo
Classe energetica
A1
79,76
Stato Immobile
Ottimo
Orientamento
Est Nord Ovest
Lati Liberi
3
Tipo Soggiorno
Doppio
Tipo Cucina
Abitabile
Riscaldamento
Centralizzato
Tipo Impianto
Pavimento
Acqua Calda
Centralizzata
Raffrescamento
Split
Infissi
Legno Doppio Vetro
Serramenti
Ottimo
Persiana
Tapparella Metallo
Pavim. Giorno
Gres Porcellanato
Pavim. Notte
Parquet

Accessori: Aria Condizionata, Ascensore, Doppi Vetri, Porta Blindata, Tapparelle Elettriche, Video Citofono, Zanzariere

Chiudi tutte
Planimetrie
Photo 1
Agenzia di riferimento
Studio I Portici srl
Studio I Portici srl
Viale Corassori, 72
41124 Modena MO
Rif. Annuncio VX2695
Vantaggi GruppoMore
Puoi acquistare questo immobile anche rivolgendoti ad un altro Agente Immobiliare del Gruppo MORE
Guarda l’elenco
Richiedi informazioni
Invia
Condividi su
Condividi su Facebook Condividi su Twitter Condividi su Linkedin Condividi su Whatsapp
Cookie preference